En esta web se utilizan cookies técnicas propias y cookies de terceros, para analizar de forma totalmente anónima y estadística el uso que haces de la página web. Esto nos permite mejorar y optimizar el uso y experiencia de usuario de la misma. Necesitamos tu consentimiento para la instalación de estas cookies. Para más información, accede a la política de cookies en el botón "Más información".
Malla GANADERA
La malla ganadera es una de las más comunes en los vallados metálicos, debido a sus grandes prestaciones, nos ofrece un producto de gran utilidad para vallados de grandes extensiones de terreno y a la vez resulta un producto de larga duración y económico.
Este tipo de malla galvanizada es idónea para la ganadería o incluso fincas con delimitaciones rurales.
Esta malla, también catalogada como malla anudada, es un tipo de malla ligera pero a la vez resistente, donde sus nudos bisagra le otorgan una resistencia considerable dentro de sus posibilidades.
La malla ganadera se presenta en rollos de 100 metros lineales, fabricada en alambre de acero galvanizado de bajo contenido en carbono, lo que confiere al material, de una gran resistencia.
Se presenta en rollos de 25 metros lineales, compactados, presentando alambre interior para facilitar su deslíe.
Los palet cargan unas cantidades que van desde las 9 unidades, en los más altos y pesados, hasta 16 unidades en los más pequeños y ligeros.
Las alturas más comunes de las mallas ganaderas son de 1.50m y 2.00 metros.
Preguntar por esta mallaDetalles y dimensiones de la malla ganadera
Los rollos son compactados hasta tal punto que obtenemos rollos de no más de 30/35 cm de diámetro, lo que nos lleva a poder ofrecer un producto de alta calidad en un espacio reducido.
Existen varios tipos de valla ganadera, pero la gran diferencia reside en la distancia entre los alambres verticales, pudiendo ser los huecos más reducidos (15 cm) o más alargados (30 cm)
Cada modelo tiene su utilidad, en función de lo que queremos obtener, se aconseja un tipo de malla u otro. En los vallados de 1.50 y 2.00 metros, su parte inferior se reduce, llevando huecos de 5x15 cm o en su defecto de 5x30cm, evitando así el paso de animales de reducido tamaño. Todas nuestra mallas ganaderas están fabricadas en alambre de 2.30mm en sus extremos y 1.80mm en los restantes.
Alambres de la malla ganadera o anudada
Tamaño de alambres de la malla ganadera
Comúnmente llamada malla anudada, dispone de dos grosores de alambre, el de los extremos y el de su interior. Los extremos disponen de una carga de rotura de 700/900(mpa); en el interior de la valla anudada, los verticales tienen una carga de rotura de 400/550(mpa) y los horizontales 700/900 (mpa).
Todos los alambres disponen de un recubrimiento mínimo de 45/50grs/m2.
La valla ganadera está fabricada partiendo de alambre duro de bajo contenido en carbono para los horizontales y alambre recocido y de bajo contenido en carbono para los verticales.
Para su fabricación, se utiliza alambre galvanizado, lo que la convierte en una malla de una gran resistencia a la corrosión y, por tanto, de una larga duración.
Preguntar por esta mallaFormatos de valla ganadera
Existen varios formatos o modelos de la valla anudada ganadera, en función de la altura, la distancia entre sus alambres verticales y el número de alambres horizontales. Dependiendo del vallado que queramos, buscaremos un tipo de malla ganadera u otro.
Medidas de mallas ganaderas
A continuación te mostramos todas las medidas de malla ganadera que tenemos para ofrecerte y en stock.
Malla anudada ganadera 100/8/15
ALTURA 1.00m: Elaborada en alambre galvanizado con una distancia entre alambres verticales de 15 cm. Se presenta con 8 alambres horizontales. Los dos alambres horizontales de los extremos (superior e inferior) son alambre 2.30 mm y todos los demás 1.80 mm.
Ver ficha técnicaMalla anudada ganadera 100/8/30
ALTURA 1.00m: Elaborada en alambre galvanizado con una distancia entre alambres verticales de 30 cm. Se presenta con 8 alambres horizontales. Los dos alambres horizontales de los extremos (superior e inferior) son alambre 2.30 mm y todos los demás 1.80 mm.
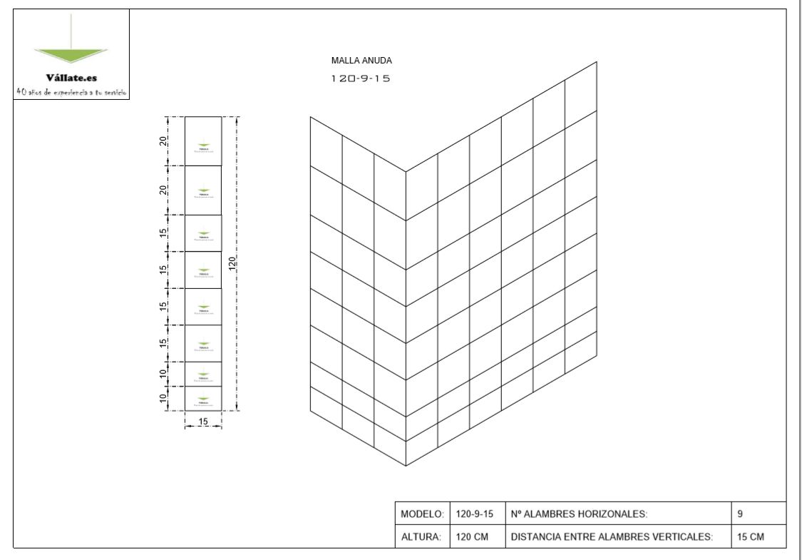
Ver ficha técnicaMalla anudada ganadera 120/9/15
ALTURA 1.20m: Elaborada en alambre galvanizado con una distancia entre alambres verticales de 15 cm. Se presenta con 9 alambres horizontales. Los dos alambres horizontales de los extremos (superior e inferior) son alambre 2.30 mm y todos los demás 1.80 mm.
Ver ficha técnicaMalla anudada ganadera 120/9/30
ALTURA 1.20m: Elaborada en alambre galvanizado con una distancia entre alambres verticales de 30 cm. Se presenta con 9 alambres horizontales. Los dos alambres horizontales de los extremos (superior e inferior) son alambre 2.30 mm y todos los demás 1.80 mm.<
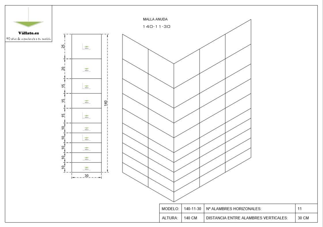
Ver ficha técnicaMalla anudada ganadera 140/11/15
ALTURA 1.40m: Elaborada en alambre galvanizado con una distancia entre alambres verticales de 15 cm. Se presenta con 11 alambres horizontales. Los dos alambres horizontales de los extremos (superior e inferior) son alambre 2.30 mm y todos los demás 1.80 mm.
Ver ficha técnicaMalla anudada ganadera 140/11/30
ALTURA 1.40m: Elaborada en alambre galvanizado con una distancia entre alambres verticales de 30 cm. Se presenta con 11 alambres horizontales. Los dos alambres horizontales de los extremos (superior e inferior) son alambre 2.30 mm y todos los demás 1.80 mm.
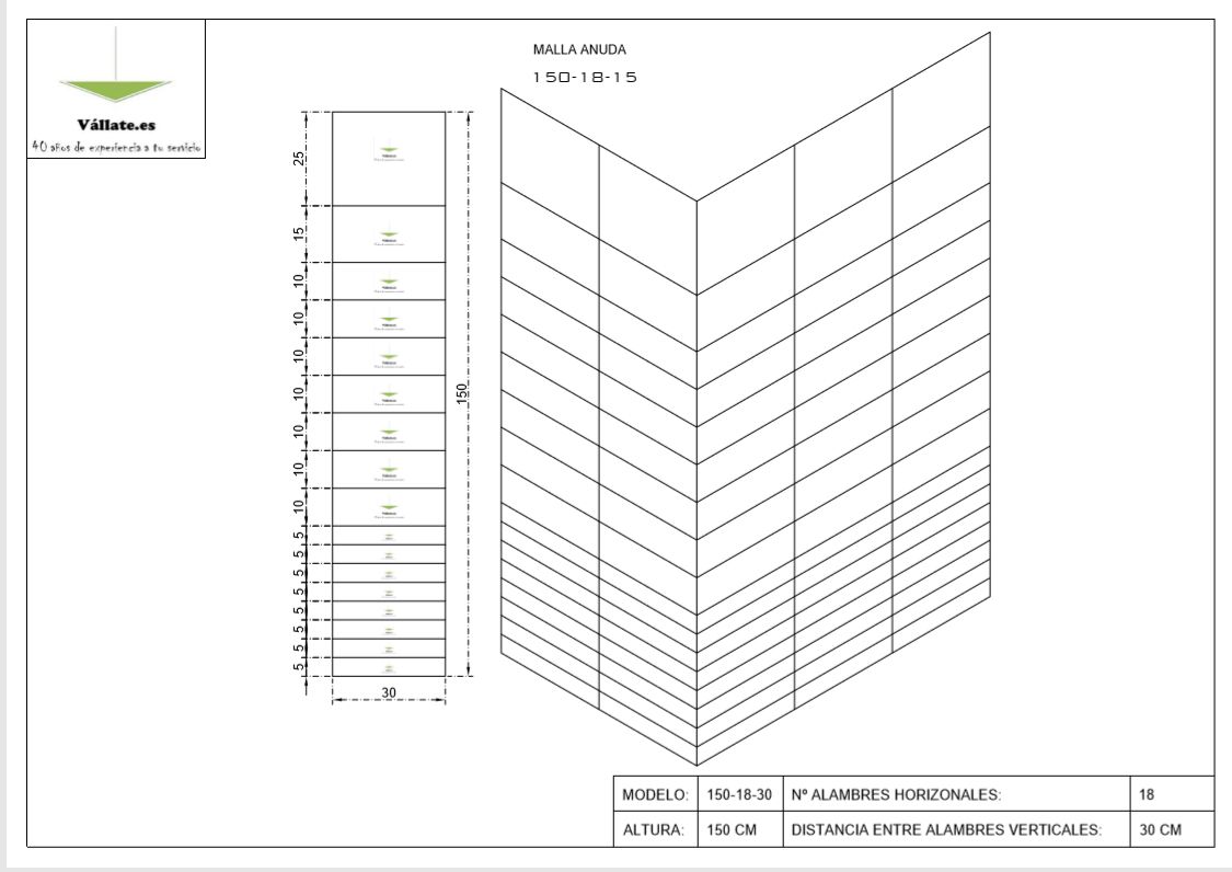
Ver ficha técnicaMalla anudada ganadera 150/18/15
ALTURA 1.50m: Elaborada en alambre galvanizado con una distancia entre alambres verticales de 15 cm. Se presenta con 18 alambres horizontales. Los dos alambres horizontales de los extremos (superior e inferior) son alambre 2.30 mm y todos los demás 1.80 mm.
Ver ficha técnicaMalla anudada ganadera 150/18/30
ALTURA 1.50m: Elaborada en alambre galvanizado con una distancia entre alambres verticales de 30 cm. Se presenta con 18 alambres horizontales. Los dos alambres horizontales de los extremos (superior e inferior) son alambre 2.30 mm y todos los demás 1.80 mm.
Ver ficha técnicaMalla anudada ganadera 200/20/15
ALTURA 2.00m: Elaborada en alambre galvanizado con una distancia entre alambres verticales de 15 cm. Se presenta con 20 alambres horizontales. Los dos alambres horizontales de los extremos (superior e inferior) son alambre 2.30 mm y todos los demás 1.80 mm.
Ver ficha técnicaMalla anudada ganadera 200/20/30
ALTURA 2.00m: Elaborada en alambre galvanizado con una distancia entre alambres verticales de 30 cm. Se presenta con 20 alambres horizontales. Los dos alambres horizontales de los extremos (superior e inferior) son alambre 2.30 mm y todos los demás 1.80 mm.
Ver ficha técnicaValla ganadera modelo cinegético
¿Qué diferencia a la malla cinegética?
Es un tipo de valla ganadera similar a la anterior, donde la principal diferencia reside en el reparto de los alambres. En este caso la luz del hueco de la malla, nunca puede ser inferior a 300 cm2 y una separación mínima de 10 cm en alambres horizontales.
La malla cinegética se caracteriza por tener una geometría progresiva, lo quiere decir que los cuadros o huecos inferiores son de un tamaño menor y, conforme vamos subiendo por la altura de la valla, los huecos tienen un mayor tamaño.
El modelo cinegético es un tipo de malla galvanizada, utilizada en vallados de cotos de caza, en los que se ven obligados al cumplimiento con la ley, de espacios naturales de flora y fauna silvestre.
Esta malla también se utiliza para cercados de parques solares, en autovías, carreteras, etc.
Preguntar por esta mallaFormatos de malla ganadera cinegética
Malla ganadera cinegética 150/14/30
ALTURA 1.50m: Elaborada en alambre galvanizado con una distancia entre alambres verticales de 30 cm. Se presenta con 14 alambres horizontales. Los dos alambres horizontales de los extremos (superior e inferior) son alambre 2.30 mm y todos los demás 1.80 mm. Modelo Andalucía.
Ver ficha técnicaMalla ganadera cinegética 200/20/30
ALTURA 2.00m: Elaborada en alambre galvanizado con una distancia entre alambres verticales de 30 cm. Se presenta con 20 alambres horizontales. Los dos alambres horizontales de los extremos (superior e inferior) son alambre 2.30 mm y todos los demás 1.80 mm. Modelo Castilla la Mancha.
Ver ficha técnicaSi estás interesado/a en colocar y poner una valla ganadera puedes llamarnos por teléfono y consultar nuestros modelos y precios al 684 45 27 21.

